Masterplanning
Masterplanning & Development Framework Strategies
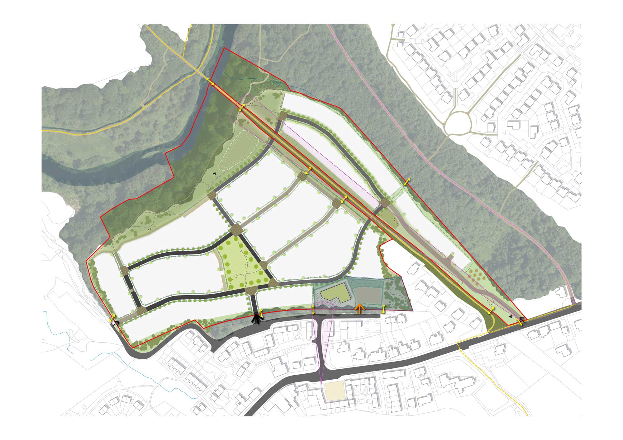
We have delivered a wide range of residential, commercial and mixed-use masterplans across Scotland, including site promotion and call for sites exercises with many Local Authorities such as Highland, Perth & Kinross, and West Lothian. Our approach is comprehensive: we work with key consultants to gather and interpret planning policy, community insights, and contextual information, ensuring that land is promoted effectively for future use and inclusion within Local Development Plans.
Every site is approached as unique. We shape masterplans and development frameworks that place community and placemaking at the core, grounded in the principles of 20-minute neighbourhoods, sustainable infrastructure, and biodiversity enhancement. Our in-house team leads the design process to maximise each site’s potential, balancing social value, community benefit, deliverability, and viability.
Central to our approach is creating a distinctive sense of place. By structuring sites into compact, people-focussed environments, we generate interest and richness through a sequence of clearly defined spaces. These settings carry the intimacy and character of organically grown towns, balancing privacy with connectivity, resulting in mid-urban settings that are vibrant, sustainable, and authentic.


























